︎
HOT ICE CREAM
WORK
ABOUT
EMAIL
INSTAGRAM
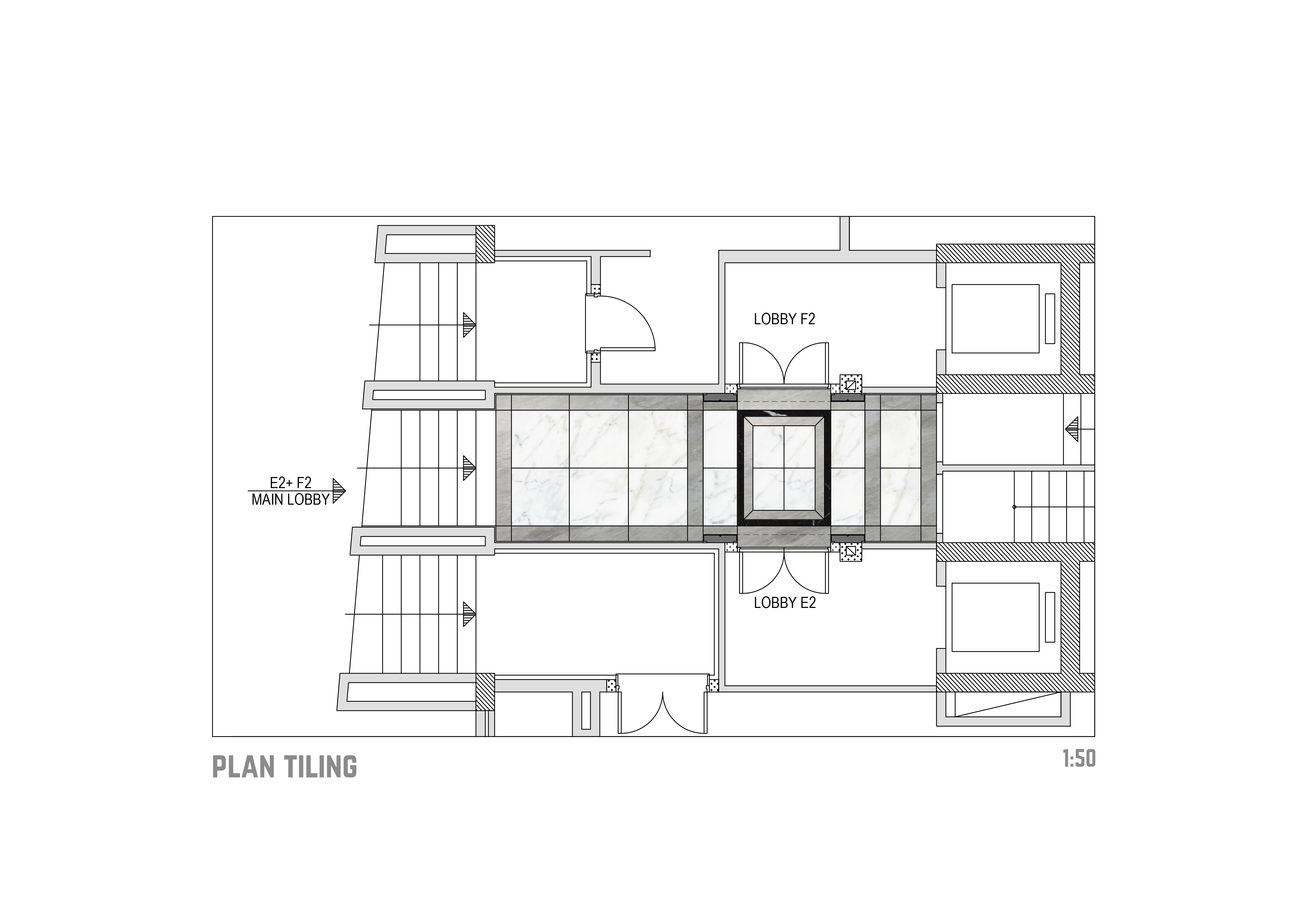
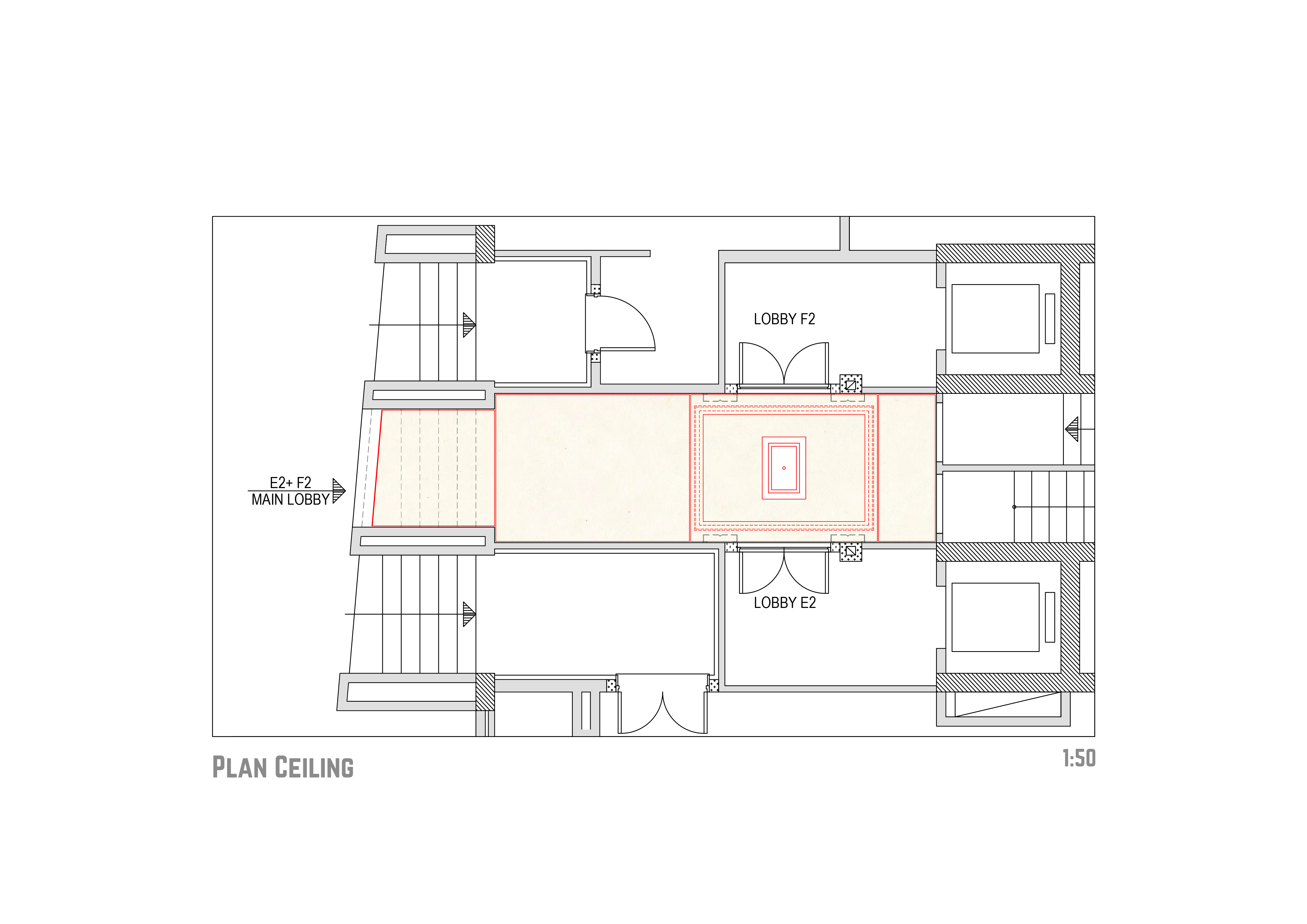
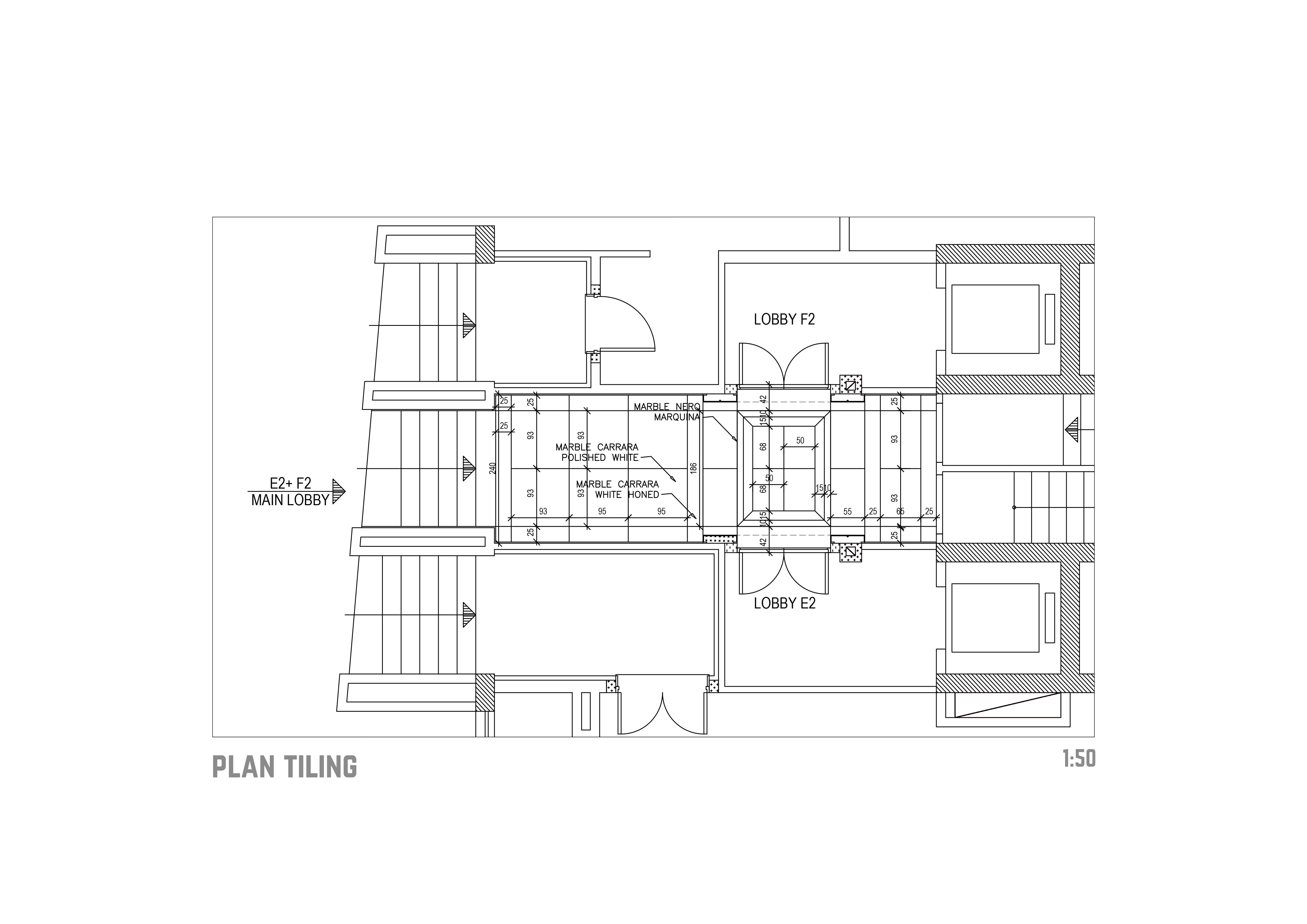
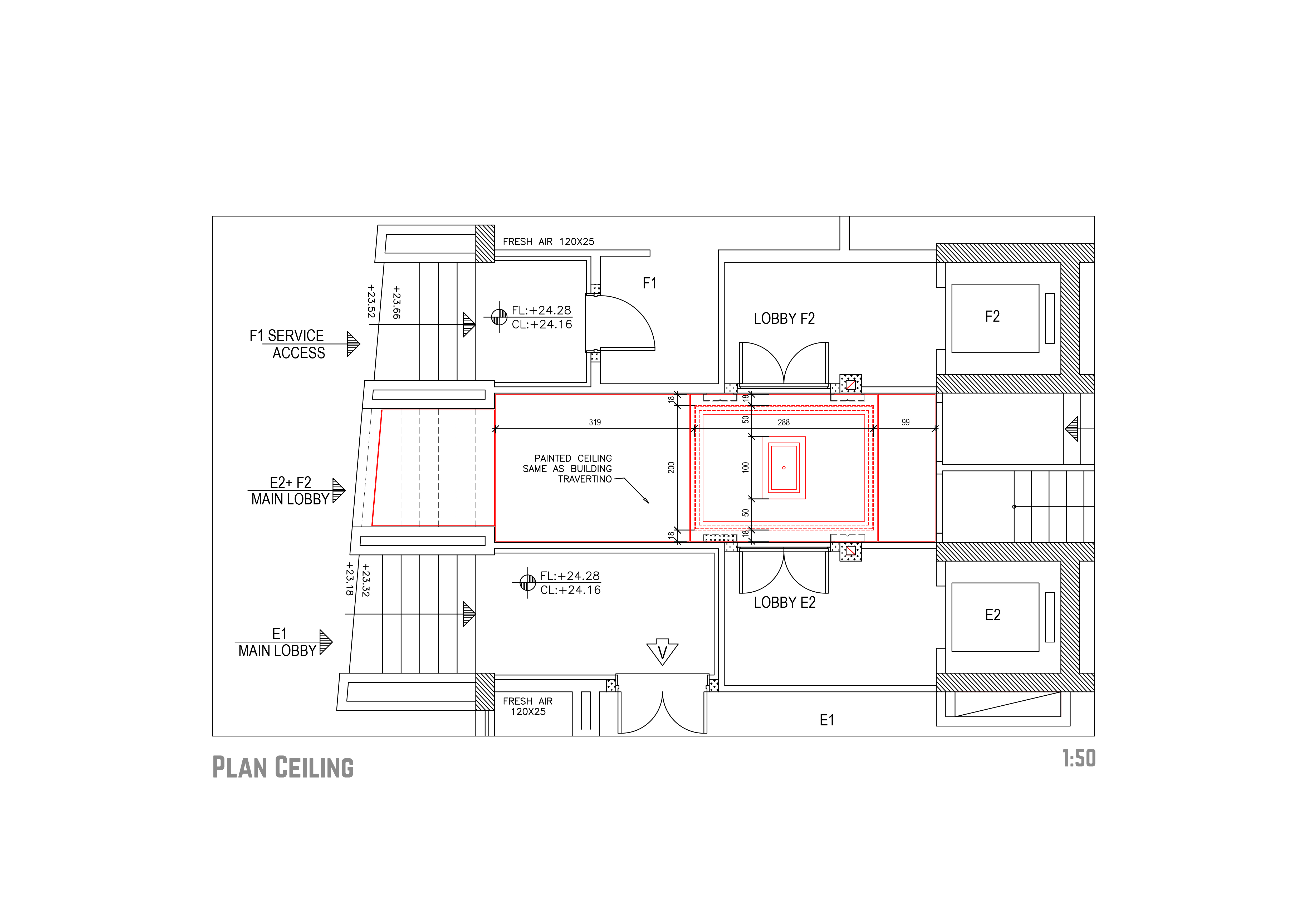
Entrance Design
November 2023
Design of two entrances of the RHR project in Downtown Beirut, The inspiration was mainly Art Deco and minimalism.
PURCHASE PRINTS
JOELLE JABBOUR
HOT ICE CREAM
™
PORTFOLIO®